Вилла в гольф-резорте Venus Rock
- Номер объекта: 49757
- Район: Пафос
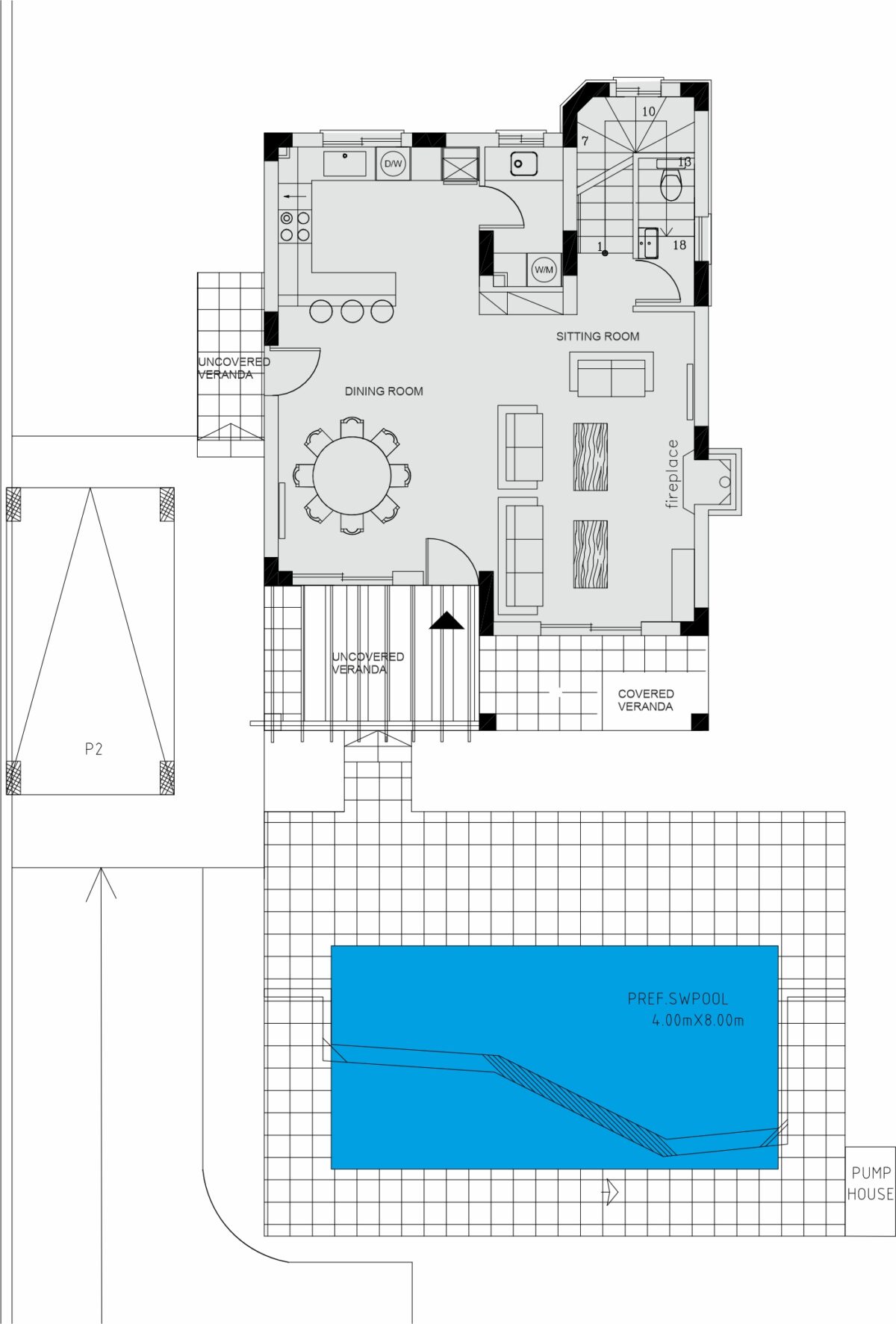
- Спальни: 3
- Ванные: 3
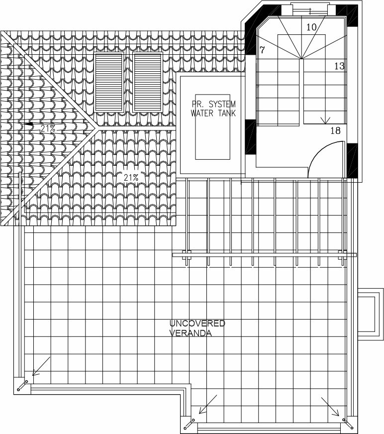
- Крытая площадь: 174 м2
- Земельный участок: 730 м2
- Бассейн: частный
- Море: 1500 м.
- Кладовое помещение: да
- Аэропорт: 10 км.
- Вид: море, горы
- Магазины: 800 м.
- Мебель: полностью
- Отопление: кондиционер
- Сад: ухоженный
- Парковка: крытая, открытая
- Камин: да
- Балконы: 25 м2
- Титул: да
Эта прекрасно спроектированная вилла с 3 спальнями и 3 ванными комнатами предлагается на продажу в престижном гольф-курорте Venus Rock, недалеко от легендарного места «Петра ту Ромиу», мифического места рождения древнегреческой Афродиты. Эта элегантная и просторная недвижимость отражает традиционный средиземноморский архитектурный стиль, синоним роскоши и комфорта, предлагая частный бассейн, ухоженные сады, террасу на крыше и частную парковку на территории. Вилла спроектированная для удовлетворения разнообразных образов жизни, отличается высококачественной отделкой, оснащена электроприборами, имеет большие террасы и крытую парковку. Расположенная на большом участке в этом исключительно райском уголке, она является идеальной инвестицией для тех, кто ищет уникальный и универсальный дом в одном из самых востребованных мест Кипра.
Tombs of The Kings Ave 8, 8046, Pafos, Cyprus






























dionisii77