Современная вилла с видом на море в Пейе, Пафос
- Номер объекта: 49918
- Район: Пафос
- Спальни: 3
- Ванные: 3
- Крытая площадь: 150 м2
- Земельный участок: 310 м2
- Бассейн: частный
- Море: 3000 м.
- Кладовое помещение: да
- Аэропорт: 25 км.
- Вид: море, горы
- Магазины: 100 м.
- Мебель: частично
- Отопление: кондиционер, электрическое
- Сад: ухоженный
- Парковка: крытая, открытая
- Балконы: 25 м2
В живописном городе Пейя, всего в нескольких минутах от побережья, предлагается к продаже современная вилла с 3 спальнями, сочетающая в себе элегантный дизайн, высокое качество строительства и идеальную локацию для комфортной жизни или инвестиций.
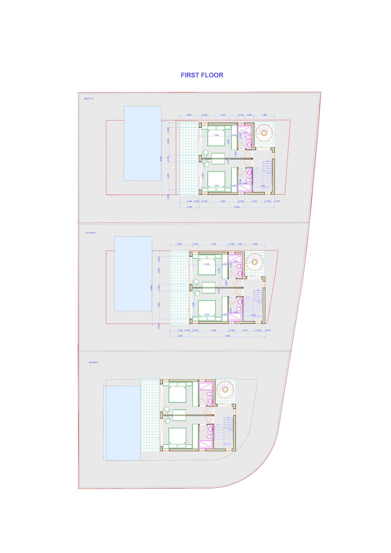
Эта двухэтажная вилла, находящаяся на этапе строительства (off plan), станет отличным выбором для тех, кто мечтает жить рядом с морем, но вдали от городской суеты. Общая крытая площадь дома составляет 150 м², участок — 310 м².
На первом этаже вас встречает просторная гостиная открытого плана, объединённая с обеденной зоной и современной кухней с гранитной столешницей и барной стойкой. Из гостиной есть выход на большую крытую веранду, идеально подходящую для летних обедов и отдыха. Также на этом уровне расположена одна из спален — идеальное решение для гостей или пожилых членов семьи — и гостевой туалет.
На втором этаже находятся две просторные спальни, каждая из которых имеет собственную ванную комнату. Из обеих спален открывается красивый вид на море и горы, а также выход на большие балконы, где можно наслаждаться утренним кофе или закатами.
Особое внимание уделено внешней зоне: частный бассейн размером 8×4 м с зоной для шезлонгов и душем под открытым небом, ухоженный сад с автоматической системой полива, просторный двор, крытая и открытая парковка. Предусмотрена возможность обустройства террасы на крыше с панорамными видами — прекрасное место для лаунж-зоны или вечернего барбекю.
Дом будет построен по самым современным стандартам: энергоэффективность класса А, утепление, шумоизоляция, фотогальваническая система, солнечные панели, насос давления воды, двойные стеклопакеты с алюминиевыми рамами. Есть подготовка под установку системы центрального отопления и кондиционирования воздуха.
Удобное расположение делает этот объект ещё более привлекательным:
5 минут до пляжа
2 минуты до центра
15 минут до центра Пафоса
25 минут до аэропорта
рядом — магазины, школы, кафе и живописные прогулочные маршруты
Эта вилла идеально подойдёт как для постоянного проживания, так и для использования в качестве дачи, а также обладает высоким арендным потенциалом.
Цена: €380,000
(Покупка осуществляется на стадии строительства — возможна адаптация проекта под пожелания клиента.)
Tombs of The Kings Ave 8, 8046, Pafos, Cyprus


















dionisii77