Роскошный угловой таунхаус в Лимассоле
- Номер объекта: 48920
- Район: Лимассол
- Спальни: 2
- Ванные: 3
- Крытая площадь: 122 м2
- Земельный участок: 200 м2
- Год строительства: 2025
- Бассейн: коммунальный
- Море: 500 м.
- Кладовое помещение: да
- Аэропорт: 50 км.
- Вид: море, горы, город
- Магазины: 200 м.
- Мебель: частично
- Отопление: кондиционер, электрическое
- Сад: ухоженный
- Парковка: крытая, открытая
- Балконы: 35 м2
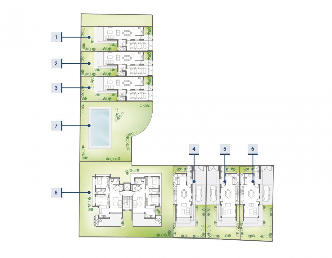
Откройте для себя свое личное убежище в лучезарном городе Лимассол. Расположенный в престижном комплексе, этот просторный угловой таунхаус — ваш ключ к комфортному, роскошному образу жизни с безмятежными видами на море. Этот новый закрытый комплекс состоит из шести двух- и трехкомнатных мезонетов и жилого здания с просторными двухкомнатными апартаментами, все с захватывающим видом на море. Каждый объект недвижимости спроектирован с учетом комфорта, стиля и удобства, и уделено особое внимание мелким деталям, которые имеют большое значение. Резиденции предлагают гостеприимное и дружелюбное к семье сообщество благодаря своему тихому и безопасному окружению, легкому доступу к пляжу, бассейну и полностью оборудованной игровой площадке для детей. Расслабьтесь на близлежащих пляжах Аоратои и Панагиес, всего в нескольких шагах от вашего порога. Насладитесь эксклюзивной обстановкой яхт-клуба St. Raphael Marina и 5-звездочных отелей, расположенных поблизости, а также потрясающими закатами с комфорта вашего собственного балкона или террасы. В этой роскошной резиденции вы будете очарованы ее изысканным дизайном и вниманием к деталям и окружающей среде. Вот на что вы можете рассчитывать:
— Большое жилое пространство площадью 122 квадратных метра.
— Две роскошные спальни
— Современные ванные комнаты и удобная дополнительная туалетная комната.
— Практичная кладовая площадью 5 квадратных метров.
— Выделенное парковочное место для вашего автомобиля.
Ощутите безграничное очарование этого элегантного таунхауса, который искусно сочетает в себе стильную жизнь и превосходное местоположение. Сделайте его своим убежищем, где каждый день будет похож на праздник. Ваша кипрская мечта начинается здесь, в резиденции.
Расстояния
- Parklane Luxury Collection Resort&Spa 0.85 km
- Nammos Beach Club 1 km
- Malindi Beach Bar&Restaurant 1.2 km
- St Raphael Marina 1.4 km
- Monte Caputo concert hall 1.6 km
Tombs of The Kings Ave 8, 8046, Pafos, Cyprus





















dionisii77