Роскошные резиденции в центре Пафоса
- Номер объекта: 5121
- Район: Пафос
- Спальни: 2
- Ванные: 3
- Крытая площадь: 162 м2
- Земельный участок: 264 м2
- Год строительства: 2024
- Бассейн: нет
- Море: 2000 м.
- Кладовое помещение: да
- Аэропорт: 15 км.
- Вид: море, горы, город, парк
- Магазины: 50 м.
- Мебель: частично
- Отопление: кондиционер, теплые полы, электрическое
- Сад: ухоженный
- Парковка: крытая
- Балконы: 80 м2
Это роскошные городские дома, расположенные в утопающем в зелени центре Пафоса. Их центральное расположение с великолепным видом на город и море обеспечивает быстрый и удобный доступ ко всем пляжям с синим флагом, отелям и резортам, полям для гольфа, развлекательным заведениям и торговым центрам.
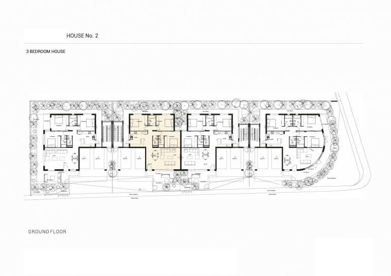
Восемь уникальных трех и четырех спальных резиденций
— Нижние этажи с личными садами
— Верхние этажи с личными террасами и садами на крыше
— Персональные входы для всех резиденций
— Индивидуальная частная парковка
— Высокое качество отделки и строительных материалов
Отправить запрос по этому объекту
Заполнение формы займет не более 1 минуты.
«*» обязательные для заполнения поля
Недвижимость: Роскошные резиденции в центре Пафоса
Наш оператор свяжется с Вами в течение 15 минут.
Tombs of The Kings Ave 8, 8046, Pafos, Cyprus




























dionisii77