Роскошные апартаменты с собственным подъездом и террасой на крыше
- Номер объекта: 43398
- Район: Пафос
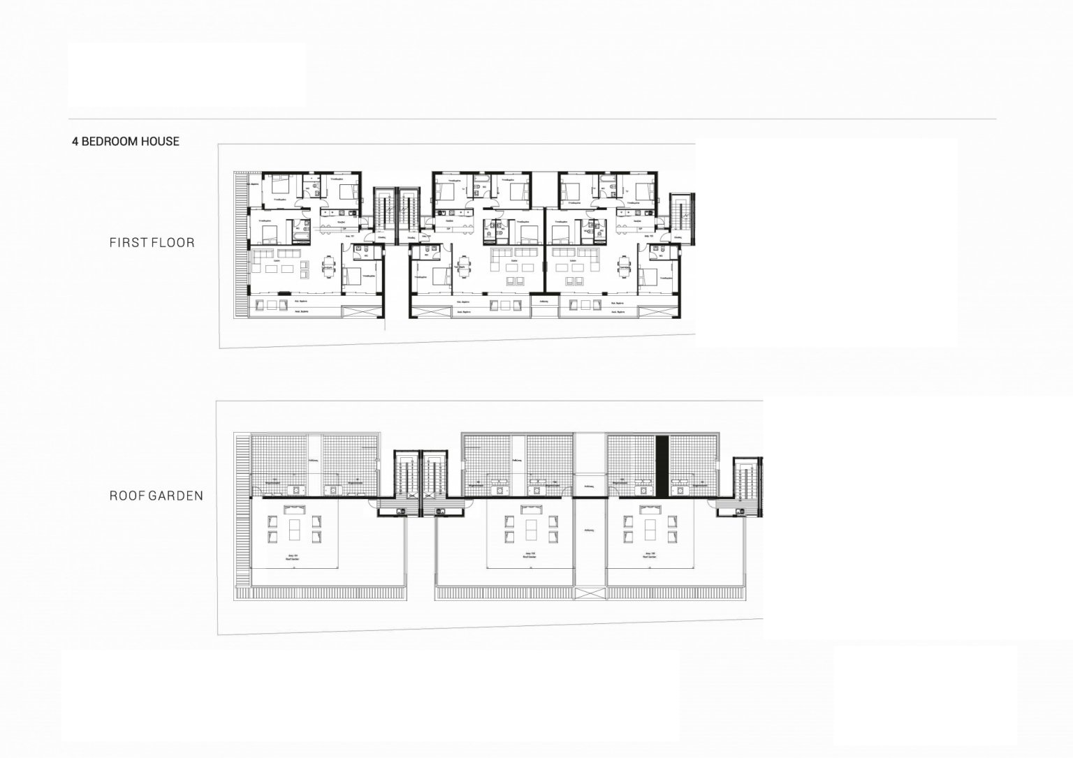
- Спальни: 4
- Ванные: 4
- Крытая площадь: 242 м2
- Год строительства: 2024
- Бассейн: нет
- Кладовое помещение: да
- Аэропорт: 14 км.
- Вид: море, город, парк
- Магазины: 50 м.
- Мебель: нет
- Отопление: теплые полы
- Парковка: крытая
- Камин: нет
- Балконы: 130 м2
Откройте для себя совершенно новую, очень просторную роскошную квартиру на верхнем этаже с отдельным входом и террасой на крыше в историческом центре Пафоса.
Эта потрясающая резиденция с 4 спальнями и 4 ванными комнатами предлагает исключительное сочетание современного комфорта и превосходного местоположения, что делает ее идеальным домом для тех, кто ищет удобство и элегантность.
ХАРАКТЕРИСТИКИ НЕДВИЖИМОСТИ:
Просторные интерьеры: квартира имеет хорошо продуманную открытую планировку с просторной гостиной, которая плавно соединяется с современной кухней, идеально подходящей как для развлечений, так и для повседневной жизни.
В доме четыре большие спальни, в каждой из которых есть достаточно места для хранения вещей, в трёх из них есть собственные ванные комнаты.
Роскошные удобства: полы с подогревом во всей квартире обеспечивают комфорт в прохладные месяцы. В доме также имеется крытая парковка, обеспечивающая удобство и безопасность для вашего автомобиля.
Жизнь на свежем воздухе: Лестница частного подъезда ведет на верхний этаж с дополнительной кухней и террасой на крыше.Это открытое пространство идеально подходит для отдыха, приема гостей или наслаждения утренним кофе.
ОСНОВНОЕ МЕСТОПОЛОЖЕНИЕ
Эта квартира расположена в самом центре Пафоса, недалеко от основных удобств, таких как пекарни, магазины, аптеки, университеты и банки. Все, что вам нужно, находится всего в нескольких минутах ходьбы.
Дом также находится всего в 6-7 минутах езды от прекрасных пляжей Пафоса и популярного торгового центра Kings Avenue Mall, предлагающего множество магазинов и развлекательных заведений.
ПОЧЕМУ ВЫБРАТЬ ЭТУ КВАРТИРУ?
Эта квартира идеально подходит для тех, кто ищет современное, роскошное жилое пространство в отличном месте. Ищете ли вы постоянное место жительства, дом для отдыха или ценную инвестиционную недвижимость, эта квартира предлагает непревзойденное качество и удобство.
Свяжитесь с нами сегодня, чтобы запланировать просмотр и сделать первый шаг к превращению этой исключительной недвижимости в ваш новый дом.
Tombs of The Kings Ave 8, 8046, Pafos, Cyprus





























dionisii77